Contact Page
  • Contact Us

Type

Property Type

Bedrooms

Bathrooms

Min. Price

Max. Price

WhatsApp Image 2025-12-04 at 15.36.05 (1).jpeg
570743b0-b666-40b7-a2d8-605eccd92246
5900305a-f362-429a-85cb-9c9d57a641a0 (1)
9bc87464-ee64-42dd-8114-1a0dbb7b56b7
WhatsApp Image 2025-12-04 at 15.36.05.jpeg
219446b8-46c0-4834-9e81-4375de621640

£1,700 PM (£61.43 / ft² PA)

0 beds 0 baths

Available

212 Northfield Avenue, London, W13

Features

Versatile space suitable for retail, office, consulting, or studio use
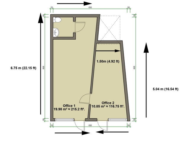
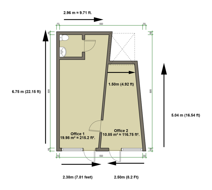
Approx. 30.85 m² (332.1 sq ft),
Prime location on a lively high street
Excellent transport connections
Ideal for small businesses looking for great visibility and convenience

Summary

Commercial Unit to Let Northfields Avenue, W13

Description

A compact and versatile commercial unit measuring approximately 30.85 m² (332.1 sq ft), ideal for a variety of uses including office space, consulting room, small studio, or a boutique retail shop.

Perfectly positioned on Northfields Avenue, the property benefits from excellent footfall, strong transport links, and close proximity to local amenities — making it an attractive choice for professionals or small businesses seeking a practical and affordable workspace.

Utilities, Rights, Easements & Risks

Utility Supplies
Electricity Ask Agent
Water Ask Agent
Heating Ask Agent
Broadband Ask Agent
Sewerage Ask Agent
Rights & Restrictions
Article 4 Area Ask Agent
Listed property Ask Agent
Restrictions Ask Agent
Required access Ask Agent
Rights of Way Ask Agent
Risks
Flooded in last 5 years Ask Agent
Flood defenses Ask Agent
Flood sources Ask Agent

Additional Details

Holding Deposit: £392.30
Security Deposit: £1,961.53

Floorplans

Ground floor

Logo

Alexanders Estate Agents - London

Alexanders Estate Agents, Unit 4 , 201-211 Northfield Avenue,, Ealing, London, W13 9QU

Phone: 0203 951 9528

Broadband Speeds

Minimum Maximum
Download -1.00 Mbps 1800.00 Mbps
Upload -1.00 Mbps 1000.00 Mbps
Estimated broadband speeds provided by Ofcom for this property's postcode.

Mobile Coverage

Indoor
Provider Voice Data 4G
EE
Three
O2
Vodafone
Estimated mobile coverage provided by Ofcom for this property's postcode.
Outdoor
Provider Voice Data 4G
EE
Three
O2
Vodafone
Estimated mobile coverage provided by Ofcom for this property's postcode.

© 2026 Contact Page
All rights reserved.

Powered by Apex27
Pages
  • Contact Us